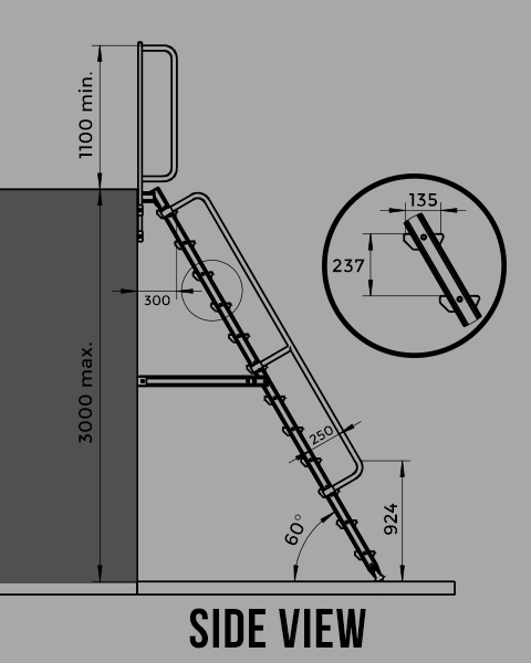
A ships ladder is an ideal solution for mezzanine access. Ship's stairs provide safe, multi-level access up and down to platforms, roofs, plat-forms, pits, trenches and walls.
Aluminum Alloy
Hight and Horizontal run

Establishment of the company
Production experience (years)
Quotation Performance
Total Employees
Response Rate